Portmarnock

Gray and white map layout of a residential neighborhood with roads, houses, and green spaces on a black background.
A detailed master plan of Portmarnock, showing streets, parks, monuments, cycling and pedestrian paths, with designated zones for bird quiet and open space.
A peaceful suburban neighborhood with modern townhouses, children playing with bubbles on a grassy park, adults walking and cycling, trees, and parked cars on a sunny day.
A modern multi-story apartment building with a white and tan brick facade. The ground floor has storefronts, including a cafe named 'Cafe du Coin' and shops called 'Centa'. Sidewalk pedestrians, outdoor seating, and a woman with a child walking are visible in the foreground. The building features balconies with glass railings and large windows. The sky is partly cloudy with green trees surrounding the scene.
A modern residential neighborhood with townhouses, people walking and children playing on sidewalks, a woman pushing a stroller crossing the street, parked cars, trees, grassy areas, and a clear blue sky.
A detailed master plan of a residential community featuring various housing types, green spaces, parks, a sports field, and roadways, with labels indicating different zones and land uses.
A modern residential community with townhouses, sidewalks, and green spaces. People are biking, walking, and relaxing outdoors on a sunny day with a blue sky and scattered clouds.
A modern residential neighborhood with townhouses, cars parked along the street, and a paved sidewalk with a separate red bike lane. People are walking, riding bikes, and a woman is talking to a young girl by a stroller in a grassy park area, with trees and shrubs around, under a blue sky with few clouds.
Aerial view of a suburban neighborhood with modern houses, a central green park with playground equipment, trees, walkways, and cars parked along the streets under a partly cloudy sky.
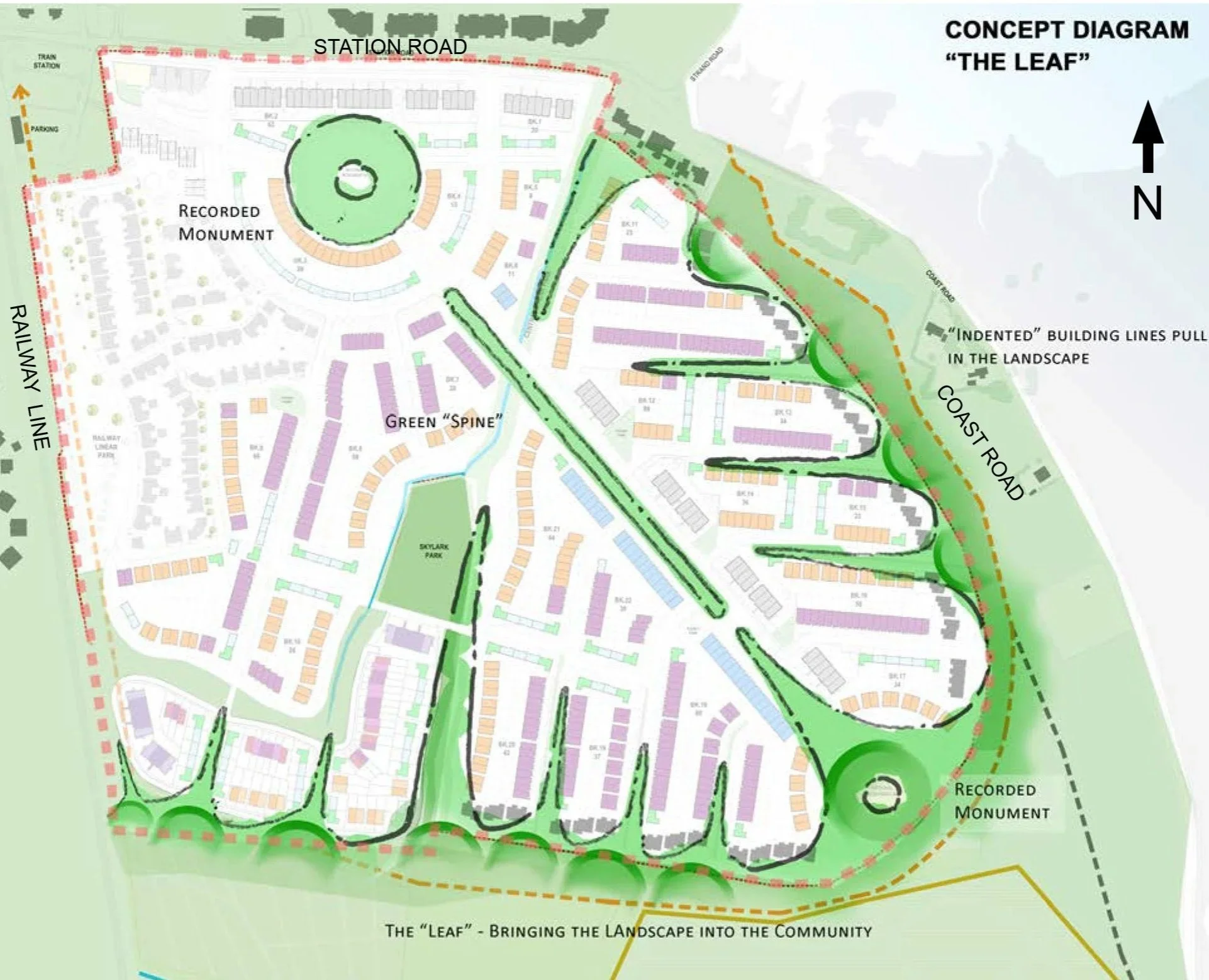
Concept diagram titled 'The Leaf' showing a landscape plan with a green area, buildings, roads, a monument, and parking. The diagram emphasizes bringing the landscape into the community with green spaces and pathways.
A topographic map showing gradients and views analysis with contour lines, direction arrows, and property boundaries. Streets labeled 'Station Road' and 'Coast Road' are at the top and right. The map highlights a brown shaded hill zone with contour lines indicating elevation levels, and property outlines along the perimeter. Blue dashed lines depict drainage or flow paths.
A residential neighborhood with modern townhouses, a large grassy park, trees, and people walking and playing with dogs under a blue sky with clouds.
Site plan of a residential area with zones for building analysis outlined by a red dashed line, streets labeled 'Station Road' and 'Coast Road,' a railway line on the left, and green spaces including parks, trees, and waterways.
Map analyzing open spaces and pocket parks with a 100-meter walk distance. Features include a monument labeled #1 near Station Road, another monument #2 near the southeast corner, open green spaces along the coastline and northwest side, connected by walkways and pathways, with a railway line on the west side and residential areas near it. Blue dashed lines represent 100-meter walk distances, and a green arrow indicates a connection between the park and the monument.
Modern residential buildings with glass balconies, residents walking and biking along a street, and a grassy field in foreground under a clear blue sky.
A map illustrating a pedestrian and cycle network analysis, showing streets, paths, green spaces, and pathways in an urban area, with directional indicators and land features.
A map showing primary and secondary vehicle routes analysis around a neighborhood, with color-coded roads, water features, and labeled landmarks.

Project Overview

BKD developed a Framework Masterplan that was heavily influenced by the setting, the existing hedgerows and the archaeological features of this key site overlooking the Coast Road and Baldoyle Estuary. The evolving masterplan was divided by the Inter Monumental Route linking the two recorded monuments at either end of the site, and developed into a form resembling a leaf, with indented edges to draw in the landscape from the adjoining open spaces. The resulting streets created controlled lines of sight and views from the central spine out towards the open landscape and estuary beyond and the alignment of the existing hedgerows defined new parks and pedestrian and cycle routes. The recorded monuments themselves informed the curved plan form of the adjoining building lines to create highly distinctive locations within the framework. At the northwestern corner of the site the Local Centre and a new public space created a pedestrian gateway to the development when arriving from the Portmarnock DART Station.

The Masterplan was used as the framework to guide a series of planning applications that allowed the development to be phased in a coherent manner to deliver over a thousand new homes on site.

Client: Evara

Site Area: 31Ha

Unit No. 1,085

Units per Ha: 35

Architectural blueprint drawing of a residential building complex with multiple houses, trees, cars, and people depicted in white lines on a black background.
A detailed black and white city planning map showing residential, commercial, and recreational areas with streets, buildings, and green spaces outlined.

More Like This